Außenansicht Wohngebäude Karwendelstraße

6020 Innsbruck
Karwendelstraße 2 & 4, 6 & 8,11 & 13
Tirol

9 Wohnungen, Wohnungsgrößen zwischen 48,4 m2 und 70,7 m2
Fertigstellung 1. Phase: April 2022
Fertigstellung 2. Phase: März 2024

Umfeld & Lage

In Innsbruck hat das ÖBB Wohnprogramm zwei nahe gelegene Wohnhäuser in der Karwendelstraße 2 und 4 sowie 11 und 13 mit insgesamt vier Stiegen generalsaniert. Die Häuser befinden sich in unmittelbarer Nähe des Innsbrucker Westbahnhofes und damit nur wenige Gehminuten von der Rail&Drive Station sowie der dort ansässigen ÖBB Lehrwerkstätte entfernt. Die städtische Infrastruktur bringt eine hervorragende Verkehrs- und Nahversorgungsinfrastruktur mit sich. Und auch der Innsbrucker Flughafen ist nur 10 Minuten mit dem Auto entfernt. In die Innenstadt gelangt man mit dem Fahrrad in 6 Minuten. 

Wohnungen & Allgemeinflächen

Den hohen Standards des ÖBB Wohnprogramms entsprechend, wurden alle Wohnungen mit einer modernen Küchenzeile inkl. Geräten ausgestattet und mit einem verfliesten Badezimmer und WC versehen. Die Grundrisse der Wohnungen wurden optimiert, die Wohnräume mit hochwertigen Parkettböden ausgestattet und alle Fenster getauscht. 

Im Zuge der Sanierung wurden beide Häuser umfassend gedämmt und ein Vollwärmeschutz angebracht, um den Heizwärmebedarf zu reduzieren und damit das Klima und die Geldbörse zu schonen. In der Karwendelstraße 11 und 13 wurde zusätzlich eine Wärmepumpe errichtet. 

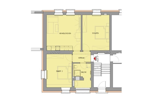
Grundriss Karwendelstraße 11, Top 242 Grundriss der Wohnung Top 242, Karwendelstraße 11
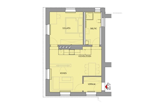
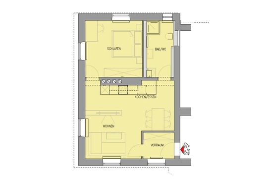
Grundriss Karwendelstraße 2, Top 270 Grundriss der Wohnung Top 270, Karwendelstraße 2

Bildergalerie Wohnanlage Karwendelstraße