Außenansicht Wohnhaus

8770 St. Michael
12.Februar-Str. 41 & 43
Liesinggasse 6
Steiermark

9 Wohnungen, Wohnungsgrößen zwischen 64 m² und 68 m²
Fertiggestellt: November 2020

Umfeld & Lage

In St. Michael im Liesingtal in der Obersteiermark wurden insgesamt drei Wohnhäuser komplett saniert. Die Gebäude in der 12.Februar-Straße 41 und 43 sowie in der Liesinggasse 6 befinden sich in fußläufiger Distanz zum Bahnhof St. Michael. Der Ort selbst verfügt über diverse Nahversorger, wie Supermärkte und Baumärkte, Apotheken und Ärzt:innen. Daneben sind auch Kindergärten und Schulen vorhanden. 

Wohnungen & Allgemeinflächen

Bei der Generalsanierung der drei Objekte wurden alle Wohnungen mit einer modernen Küchenzeile, einem voll ausgestatteten und verfliesten Badezimmer und WC versehen. Darüber hinaus zeichnet sich unser modernes Wohnen durch intelligente und durchdachte Grundrisse, große Fensterflächen für optimale natürliche Beleuchtung sowie durch die Errichtung von Balkonen als persönlicher Freiraum aus. 

Um die thermischen Eigenschaften der Wohnungen und der Gebäude zu verbessern und um Schallemissionen zu reduzieren, wurden in allen Objekten neue Fenster eingebaut. Im Zuge der Generalsanierung wurden auch die Außenanlagen erneuert, Grünflächen eingefriedet, ein Kinderspielplatz errichtet und für zusätzliche Parkplätze gesorgt. 

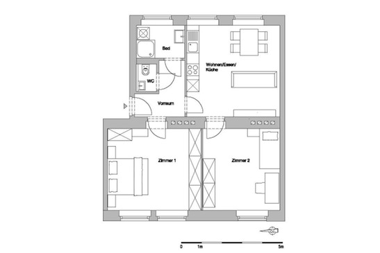
Grundriss St. Michael, Top 653 Grundriss der Wohnung, Top 653
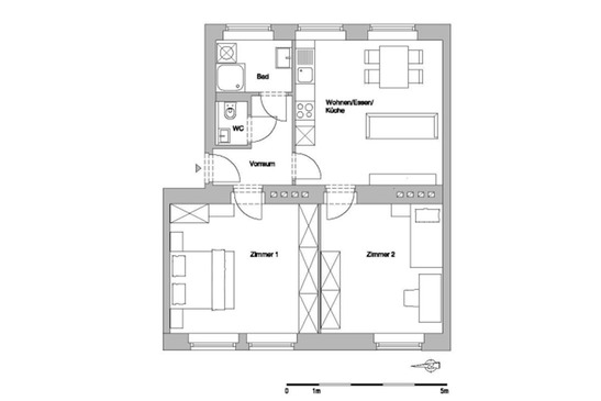
Grundriss St. Michael, Top 668 Grundriss der Wohnung, Top 668

Bildergalerie Wohnhaus St. Michael