Außenansicht Haunspergstraße

5020 Salzburg
Haunspergstraße 13, 15, 16 & Ignaz von Heffter­straße 2

16 Wohnungen, Wohnungsgrößen zwischen 37 m² und 103 m²
Fertigstellung: Dezember 2022

Umfeld & Lage

Die 1922 errichteten und 2022 generalsanierten Wohnhäuser befinden sich nur wenige Gehminuten vom Hauptbahnhof Salzburg entfernt. Zentral gelegen erreicht man ebenfalls fußläufig die Salzburger Altstadt. Erwähnenswert ist der kurze Weg zur Festung Hohensalzburg und dem Kapuzinerberg, wo man über die Dächer von Salzburg blicken kann.
Neben den öffentlichen Verkehrsmitteln befinden sich auch Schulen, Supermärkte, Ärzt:innen und andere Geschäfte des täglichen Bedarfs in unmittelbarer Nähe.

Es wurden 16 Wohnungen generalsaniert, die Heizungsanlage mit Fernwärme erneuert und die Grundrisse optimiert. Alle Wohnungen erhielten moderne Küchenzeilen inkl. Geräte, voll ausgestattete und verflieste Badezimmer und WCs. In den Wohnräumen wurden hochwertige Parkettböden verlegt.

Wohnungen & Allgemeinflächen

Im Rahmen der Sanierung und in Hinblick auf die ökologische Nachhaltigkeit wurden bei allen drei Wohnhäusern neue Fenster eingebaut, das Dach saniert und die Fassade überarbeitet. Damit werden die thermischen Eigenschaften des Hauses deutlich verbessert, was sowohl das Klima als auch das Haushaltseinkommen schont.
 

 

Grundriss 13 Top 6 Grundriss der Wohnung Top 6, Haus 13
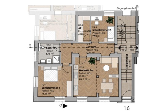
Grundriss 16 Top 2 Grundriss der Wohnung Top 2, Haus 16

Bildergalerie Wohnanlage Haunspergerstraße