Wohnhaus Salzburg Weitwinkelaufnahme

5020 Salzburg
Bahnhofstraße 17-21
Salzburg

14 Wohnungen, Wohnungsgrößen zwischen 44,8 m² und 59,38 m²
Fertiggestellt: Juli 2021

Umfeld & Lage

Die Wohnhäuser befinden sich in der Bahnhofstraße 17, 19 und 21, in der Nähe des Salzburger Hauptbahnhofs.

Wohnungen & Allgemeinflächen

Im Rahmen der Generalsanierung haben wir die Fenster, die Fassade und die leerstehenden Wohnungen instandgesetzt. Wir haben sämtliche Wohnungsgrundrisse optimiert und so attraktiven, zeitgemäßen Wohnraum geschaffen. Alle Wohnungen sind mit einer modernen Küchenzeile, einem voll ausgestatteten und verfliesten Badezimmer und WC versehen. Die Schlafzimmer haben wir mit Einbauschränken ausgestattet. Alle Wohnungstüren wurden getauscht und die Hauseingänge saniert. Das Dach wurde ebenfalls erneuert.

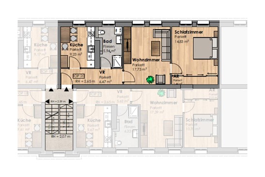
Grundriss Top 20 Grundriss der Wohnung im 2.OG/ Haus 19

Bildergalerie Wohnanlage Bahnhofstraße