Visualisierung Außenansicht Böhmerwaldstraße Linz

4020 Linz
Böhmerwaldstraße 2-8
Oberösterreich

31 Wohnungen, Wohnungsgrößen zwischen 36 m² und 94 m²
Fertigstellung: Dezember 2022

Umfeld & Lage

Das Wohngebäude in der Böhmerwaldstraße liegt zentral zwischen Volksgarten und Linzer Hauptbahnhof. Rund um den Hauptbahnhof befinden sich einige ÖBB Betriebseinrichtungen wie beispielsweise TS, Produktion, Immobilienmanagement, Infrastruktur, Postbus und Operative Services. Der Linzer Bahnhof ist ein wichtiger Knotenpunkt im oberösterreichischen Nahverkehr, in nur knapp 1,5 Stunden erreicht man Wien oder Salzburg. Durch die Lage des Wohnhauses direkt im Zentrum der Stadt, sind alle Geschäfte des täglichen Bedarfs sowie Schulen und Naherholungsgebiete fußläufig erreichbar.

Wohnungen & Allgemeinflächen

Im Rahmen der Bauarbeiten wurden die leerstehenden Wohnungen generalsaniert. Die Grundrisse wurden optimiert, um passenden Wohnraum für Singles, Pärchen und Familien zu schaffen. Alle Wohnungen verfügen über eine moderne Küchenzeile, ein voll ausgestattetes und verfliestes Badezimmer sowie ein WC. In den Aufenthaltsräumen befinden sich Holzböden. Die in die Jahre gekommene Heizungsanlage wurde durch einen Anschluss an die Fernwärme getauscht. Im Zuge dessen wurden alle Wohnungen mit einer Fußbodenheizung ausgestattet. Der Großteil der Wohnungen in der Böhmerwaldstraße 2-8 verfügt über einen Balkon.

Im Rahmen der Sanierung wurde die Fassade neugestaltet und die Fenster und Balkontüren getauscht. Ebenso wurden die Eingangsbereiche aller Stiegen erneuert und modernisiert.

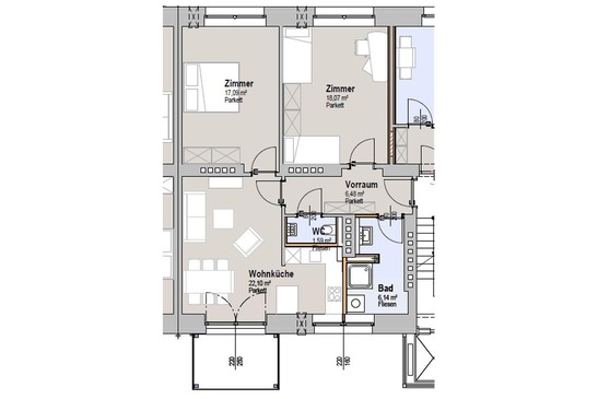
Grundriss der Wohnung Top 6 Grundriss der Wohnung Top 6
Grundriss Top 11 Grundriss der Wohnung Top 11