Wohnhaus St. Pölten Grillparzerstrasse

3100 St. Pölten
Grillparzerstraße 59
August-Hassack-Straße 3
Niederösterreich

18 Wohnungen, Wohnungsgrößen zwischen 32,5 m2 und 80 m2
Fertigstellung: März 2022

Umfeld & Lage

Das um 1900 errichtete Wohngebäude ist das erste Objekt im Hof 3 der sogenannten „Bauvereinshäuser" in St. Pölten in der Grillparzerstraße 59 bzw. August-Hassack-Straße 3. Neben diversen Bahn- und Busverbindungen befinden sich auch einige Supermärkte, Gastronomiebetriebe und Ärzt:innenpraxen in fußläufiger Entfernung. Darüber hinaus wird der neue ÖBB-Bildungscampus St. Pölten in unmittelbarer Nähe errichtet.

Wohnungen & Allgemeinflächen

Wir haben die Wohnungsgrundrisse optimiert und so zeitgemäßen, attraktiven Wohnraum geschaffen. Darüber hinaus wurden hofseitig Balkone errichtet. Alle Wohnungen wurden mit einer modernen Küchenzeile, einem voll ausgestatteten und verfliesten Badezimmer und WC versehen. In den Aufenthaltsräumen haben wir Holzböden verlegt. Durch einen Fernwärmeanschluss und der Einleitung von Fernwärme in die sanierten Wohnungen für Heizung und Warmwasser, kommt es zu einer erheblichen Modernisierung und Ökologisierung des gesamten Wohngebäudes.

Neben der Generalsanierung der Stiegenhäuser haben wir auch die Hauseingangs- sowie die Wohnungseingangstüren getauscht. Erneuert wurden auch die Fenster und die Fassade, wobei hier besonders auf den Ensembleschutz Rücksicht genommen wurde.

Die weiteren 6 Wohngebäude im Hof 3 befinden sich derzeit in Planung, die Bauphase ist für die Jahre 2022/23 geplant.

Grundriss St. Pölten, Top 1 Grundriss der Wohnung Top 1
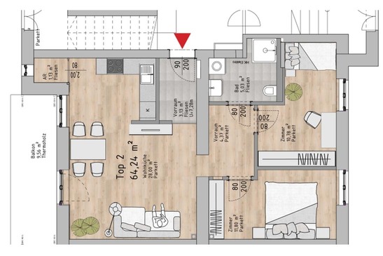
Grundriss St. Pölten, Top 2 Grundriss der Wohnung Top 2

Bildergalerie Bauvereinshäuser