Frontansicht St. Veit an der Glan

9300 St. Veit an der Glan
Personalstraße 9,11 & 13
Kärnten

14 Wohnungen, Wohnungsgrößen zwischen 45,4 m2 und 86,3 m2
Fertiggestellt: Dezember 2021

Umfeld & Lage

Die Wohnhäuser in der Personalstraße 9, 11 und 13 in St. Veit an der Glan befinden sich in bester Lage mit hervorragender Verkehrsanbindung und zahlreichen Nahversorgern, wie Supermärkten, Gasthäusern, Apotheken und Ärzt:innen im direkten Wohnumfeld.

Wohnungen & Allgemeinflächen

Bei der 2021 durchgeführten Generalsanierung der 1948 errichteten Wohnhäuser wurden die Grundrisse für unterschiedliche Wohnbedürfnisse optimiert. So entstanden kleinere Singlewohnungen, Wohnungen für Pärchen, aber auch großzügigere Grundrisse, die für die Bedürfnisse einer Familie gedacht sind. Alle Wohnungen sind mit einer modernen Küchenzeile inkl. Geräten, einem voll ausgestatteten und verfliesten Badezimmer und WC versehen. In sämtlichen Wohnräumen wurden Parkettböden verlegt.

Für erhöhten Schall- und Wärmeschutz sorgen neue Fenster mit Isolierverglasung. Hofseitig wurden neue Balkone mit Blick ins Grüne errichtet. Die Außenanlagen wurden modernisiert, die Grünflächen eingefriedet, dabei Aufenthaltsmöglichkeiten im Freien geschaffen und ein neuer Kinderspielplatz errichtet. 

Grundriss Top 137 Grundriss der Wohnung Personalstraße 9, Top 137
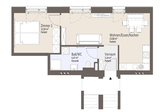
Grundriss Top 160 Grundriss der Wohnung Personalstraße 13, Top 160

Bildergalerie Wohnhäuser St. Veit an der Glan