Wohnhaus Klagenfurt Straßenansicht

9020 Klagenfurt
Jesserniggstraße 31 & 33
Kärnten

4 Wohnungen, Wohnungsgrößen zwischen 55 m² und 82 m²
Fertiggestellt: Oktober 2020

Umfeld & Lage

Das im Jahre 1950 errichtete und 2020 generalsanierte Wohnhaus befindet sich in der Jesserniggstraße 31 und 33. Es liegt im Osten von Klagenfurt unweit des Klagenfurter Ostbahnhofs und in einer stadtnahen Lage mit guter Anbindung an den öffentlichen Verkehr.

Wohnungen & Allgemeinflächen

Im Rahmen der Generalsanierung wurden Kunststofffenster mit Isolierverglasung eingebaut und so für erhöhten Schall- und Wärmeschutz gesorgt. Die Grundrisse der Wohnungen haben wir für unterschiedliche Wohnbedürfnisse (Singles, Familien, Pärchen) optimiert. Die Wohnungen sind sowohl hof- als auch straßenseitig ausgerichtet. Alle vier Wohnungen sind mit einer modernen Küchenzeile, einem voll ausgestatteten und verfliesten Badezimmer und WC versehen. In sämtlichen Wohnräumen haben wir Parkettböden verlegt. Des Weiteren wurden im zweiten Stock Balkone nachgerüstet.

Im Innenhof haben die Mieter:innen die Möglichkeit, ihr Auto zu parken sowie ihre Fahrräder abzustellen. Wir haben die Grünflächen verschönert und für die Bewohner:innen Aufenthaltsmöglichkeiten im Freien geschaffen.

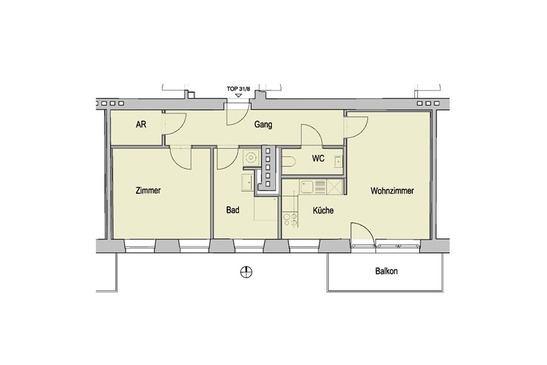
Grundriss Klagenfurt Grundriss der Wohnung im 2.OG/ Top 31/8

Bildergalerie Wohnhaus Klagenfurt